Na ogłoszony przez Starostwo Powiatowe w Sejnach przetarg dotyczący budowy wolnostojącego budynku dla potrzeb Środowiskowego Domu Pomocy Społecznej przy ulicy Łąkowej wpłynęły cztery oferty.
Najniższą złożyła firma MK-BUD z Białegostoku. Opiewa ona na 2.567.799 zł brutto. Remont –Bud z Szepietowa chce 2.755.241 zł. Obie firmy dają 84 miesięcy gwarancji. Taki sam okres gwarancyjny przewiduje także oferta Zakładu Ogólnobudowlanego Pawła Rzadkowskiego z Suwałk, ale cena jest Nido wyższa, bo wynosząca 3. 039.381 zł brutto. Najwyższą ofertę, opiewającą na 3.317.693 zł, złożyło Przedsiębiorstwo Budowlane –Remontowe CEMPLEX z Suwałk. Dało też 72 miesiące gwarancji.
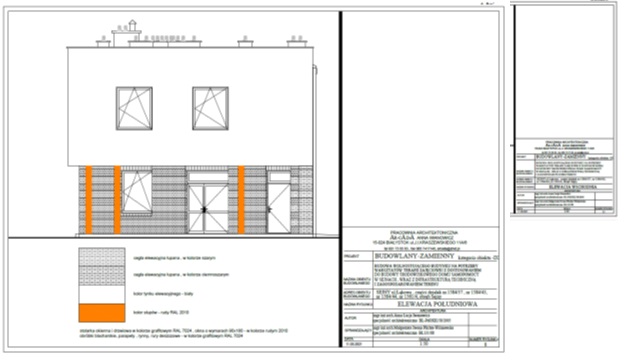
Łączna powierzchnia użytkowa nowo wybudowanego budynku wyniesie 409,50 m2. Budynek ŚDS zaprojektowany został jako dwukondygnacyjny, niepodpiwniczony, na rzucie prostokąta ze ściętym narożnikiem na parterze. Piętro jest na rzucie prostokąta, lekko nadwieszone od strony zachodniej i nadwieszone od południa – ze ściętym narożnikiem, podparte trzema słupami tworzy zadaszoną przestrzeń przed wejściem do budynku.
Inwestycja będzie realizowana w dwóch następujących etapach: Etap I w roku 2021- prace budowlane (stan surowy zamknięty),- roboty w zakresie okablowania oraz instalacji elektrycznych,- przyłącza wodociągowe i kanalizacji sanitarnej,- instalacje wewnętrzne, kanalizacja deszczowa, drenaż opaskowy
Etap II w roku 2022- prace budowlane – prace wykończeniowe, - roboty w zakresie okablowania oraz instalacji elektrycznych,- instalacje wewnętrzne, - roboty w zakresie kształtowania terenów zielonych, - oświetlenie zewnętrzne
Okres realizacji zamówienia opiewa na ˜13 miesięcy.
Powiat Sejneński otrzymał rządową dotację na realizację I etapu budowy Środowiskowego Domu Samopomocy w Sejnach przy ul. Łąkowej w wysokości 1.622.205,00 zł.
Budynek ŚDS będzie placówką pobytu dziennego osób z zaburzeniami psychicznymi oraz osób z upośledzeniem umysłowym przeznaczonym dla ok. 40 uczestników. Uczestnicy będą korzystać z profesjonalnej pomocy w celu adaptacji do życia w środowisku rodzinnym i społecznym, zaradności życiowej i integracji społecznej.
WYG
Źródło i grafika: Starostwo Powiatowe w Sejnach










