Na nadzwyczajnej sesji Rady Miasta Sejny, 6 maja radni jednogłośnie zmienili plan zagospodarowania przestrzennego w zachodniej części miasta, w okolicach ulicy Zawadzkiego. Pozwoli to na budowę tam mieszkań.
TakÄ… decyzjÄ™ radni podjÄ™li już podczas sesji 28 grudnia 2021 roku, ale zakwestionowaÅ‚ jÄ… wojewoda podlaski. Powodem byÅ‚ fakt, iż zlokalizowane sÄ… tam napowietrzne linie elektroenergetyczne, które nie mogÄ… znajdować siÄ™ obok zamieszkanych budynków. W planie nie wyznaczono nieprzekraczalnej linii zabudowy, czyli granicy pasa ochronnego od sieci elektroenergetycznych. Obecnie tÄ™ wadÄ™ planu usuniÄ™to.
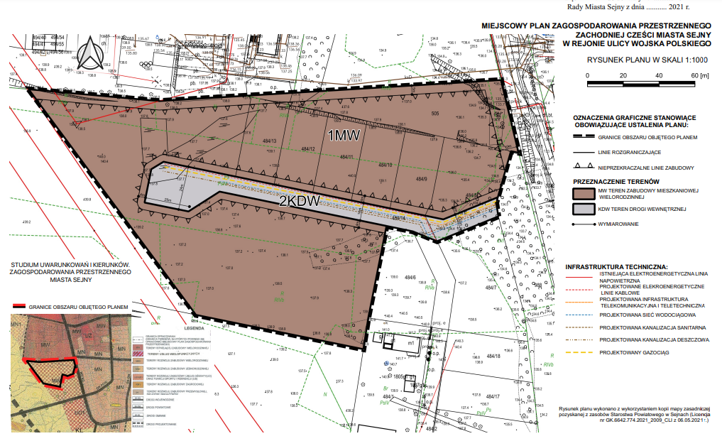
Zmiany planu przewidujÄ… zaÅ› możliwość budowy na terenie na zachód od ul. Wojska Polskiego i póÅ‚noc od ul. Zawadzkiego, na ok. 2,48 ha terenu, budynków wielorodzinnych, z możliwoÅ›ciÄ… umieszczenia w budynkach mieszkaniowych lokali handlowych lub usÅ‚ugowych do 400 m kw., a także budowÄ™ drogi wewnÄ™trznej. Obecnie sÄ… tu pastwiska, i nieużytki. BÄ™dÄ… wielorodzinne budynki mieszkalne, w tym komunalne. Miasto liczy też na inwestorów prywatnych. To wÅ‚aÅ›nie na wniosek inwestora dokonano zmian planu.
DrugÄ… dobrÄ… wiadomoÅ›ciÄ… dla miasta jest przyznanie przez samorzÄ…d województwa podlaskiego 300 tysiÄ™cy zÅ‚otych ( wartość prac opiewa na 420 tys. zÅ‚.) na dokumentacjÄ™ projektowÄ… wraz z kosztorysowÄ… na budynki komunalne poÅ‚ożone w strefie konserwatorskiej przy ul. PiÅ‚sudskiego i Zawadzkiego w Sejnach. DokumentacjÄ™ obejmowaÅ‚aby 6 budynków.
Szansa na mieszkania
Jest szansa, że w Sejnach rozpocznie siÄ™ wreszcie budowa mieszkaÅ„ socjalnych i komunalnych. Na poczÄ…tku października 2022 roku podczas sesji Rady Miasta Sejny radni jednogÅ‚oÅ›nie przyjÄ™li uchwałę w sprawie wyrażenia zgody na utworzenie spóÅ‚ki EcoDom.
Podstawowym celem gospodarczym spóÅ‚ki bÄ™dzie budowanie domów mieszkalnych oraz ich eksploatacja. BÄ™dzie to wspólne przedsiÄ™wziÄ™cie z KrajowÄ… AgencjÄ… Poszanowania Energii S.A. (KAPE), która ma sÅ‚użyć pomocÄ… w budowie mieszkaÅ„ socjalnych. BÄ™dÄ… to mieszkania pasywne energetycznie.
Na początek zostanie zbudowanych budynek działce u zbiegu ulic Zawadzkiego i Grodzieńskiej (niedaleko tzw. łąk biskupich) co najmniej z kilkunastoma lokalami socjalnymi, a być może będzie ich 28.
Z kolei z maju 2021 roku radni Sejn podjÄ™li jednogÅ‚oÅ›nie uchwałę intencyjnÄ… w sprawie zgody na utworzenie spóÅ‚ki SpoÅ‚eczna Inicjatywa Mieszkaniowa „KZN Podlaskie”, której celem jest budowa domów mieszkalnych oraz ich eksploatacja. SpóÅ‚kÄ™ zakÅ‚ada kilkanaÅ›cie samorzÄ…dów woj. podlaskiego, w tym m.in. miasto i gmina wiejska Sejny.
W piÄ…tek, 6 maja dokonali jednej formalnej zmiany w uchwałę. SiedzibÄ… spóÅ‚ki majÄ… bowiem być MoÅ„ki, a nie, jak wczeÅ›niej planowano, BiaÅ‚ystok.
Prezes KZN Arkadiusz Urban spotkaÅ‚ siÄ™ niedawno z pozostaÅ‚ymi wspólnikami spóÅ‚ki SIM KZN-Podlaskie. W trakcie rozmów doprecyzowano szczegóÅ‚y umowy spóÅ‚ki. Podpisanie dokumentu powoÅ‚ujÄ…cego pierwszy SIM w województwie podlaskim zaplanowano na drugÄ… poÅ‚owÄ™ maja br.
Szacuje się, że w ramach SIM KZN-Podlaskie może powstać ok. 800 mieszkań (o średniej wielkości 50 m2) na wynajem, z niskim czynszem i możliwością wykupu na korzystnych warunkach. W Sejnach ma być zbudowanych w tym systemie co najmniej 40 mieszkań.
WYG









