Aż dziesięć ofert złożono w przetargu ogłoszonym przez Zarząd Dróg i Zieleni w Suwałkach na modernizację parkingów, jezdni chodników ul. Witosa - Obozowa.
ZdiZ zaplanował wydane na ten cel 800 tys. brutto. Dziewięć ofert spełnia te założenia. Najtańszą ofertę, opiewającą na 686 246,89 zł brutto, złożyła firma Mega-Kop Emilia Jankowska z Suwałk.
Wykaz ofert:
1. Strabag Pruszków - 779 986,46 zÅ‚
2. PPPH Hentar Suwałki - 799 658,67 zł
3. Mega-Kop Suwałki - 686 246,89 zł
4. Cehini Zgierz - 722 971,86 zł
5. Solidmat ZabÅ‚udów- 974 455,20 zÅ‚
6. ZakÅ‚ad Ogólnobudowlany i Drogowy SuwaÅ‚ki - 873 285,24 zÅ‚
7. Towarzystwo Budownictwa Społecznego w Olecku - 797 063,37 zł
8. Kris Bruk Filipów 807 860,83 zÅ‚
9. PDM Suwałki - 731 837,82 zł
10. Rem-Bud Suwałki - 766 980,03 zł
Okres realizacji zadania: 6 miesięcy od podpisania umowy z wyłonionym w przetargu wykonawcą.
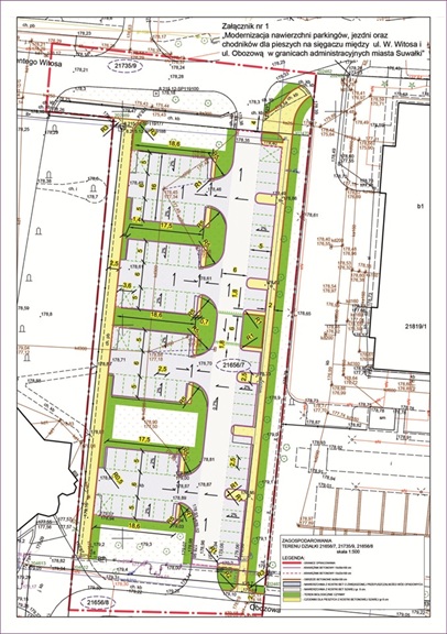
Inwestycja obejmie teren osiedlowy zlokalizowany pomiÄ™dzy ul. Wincentego Witosa a ul. ObozowÄ… - obszar intensywnie użytkowany przez mieszkaÅ„ców, zarówno przez kierowców, jak i pieszych. Po zakoÅ„czeniu procedury przetargowej i podpisaniu umowy wykonawca bÄ™dzie mieć 6 miesiÄ™cy na realizacjÄ™ prac.
Co obejmuje zakres modernizacji?
Zadanie ma charakter kompleksowy i obejmuje zarówno roboty rozbiórkowe, jak i wykonanie nowych nawierzchni oraz elementów infrastruktury drogowej.
W ramach inwestycji przewidziano m.in.:
- rozebranie ok. 512 mb krawężników betonowych oraz ok. 234 mb obrzeży,
- rozbiórkÄ™ ok. 2700 m² istniejÄ…cej nawierzchni z kostki betonowej,
- wykonanie robót ziemnych,
- uÅ‚ożenie nowych krawężników (ok. 512 mb) i obrzeży (ok. 291 mb),
- wykonanie nowych podbudów pod jezdnie i parkingi (łącznie kilka tysiÄ™cy m²),
- uÅ‚ożenie nowej nawierzchni z kostki betonowej – w tym kostki o zwiÄ™kszonej przepuszczalnoÅ›ci wód opadowych,
- zastosowanie elementów w kolorze żóÅ‚tym z wypustkami, poprawiajÄ…cych dostÄ™pność dla osób z niepeÅ‚nosprawnoÅ›ciami,
- odtworzenie terenów zielonych – wykonanie ok. 970 m² trawników.
Cel inwestycji
SiÄ™gacz miÄ™dzy ul. Witosa a ul. ObozowÄ… to przestrzeÅ„ codziennie wykorzystywana przez mieszkaÅ„ców pobliskich budynków. Wieloletnia eksploatacja spowodowaÅ‚a zużycie nawierzchni – pojawiÅ‚y siÄ™ duże nierównoÅ›ci oraz znaczne miejscowe ubytki.
Realizacja zadania pozwoli poprawić stan techniczny nawierzchni, zwiÄ™kszyć bezpieczeÅ„stwo pieszych i kierowców oraz uporzÄ…dkować miejsca postojowe i podnieść estetykÄ™ przestrzeni osiedlowej.

ŹródÅ‚o i fot : ZDiZ w SuwaÅ‚kach










