Dwaj projektanci rywalizują ze sobą o stworzenie koncepcji zagospodarowania bulwarów nadrzecznych w Suwałkach. Ratusz liczy, że teren ten zacznie się zmieniać już w przyszłym roku latach. Na razie zaprezentował projekty i czeka komentarze mieszkańców miasta.
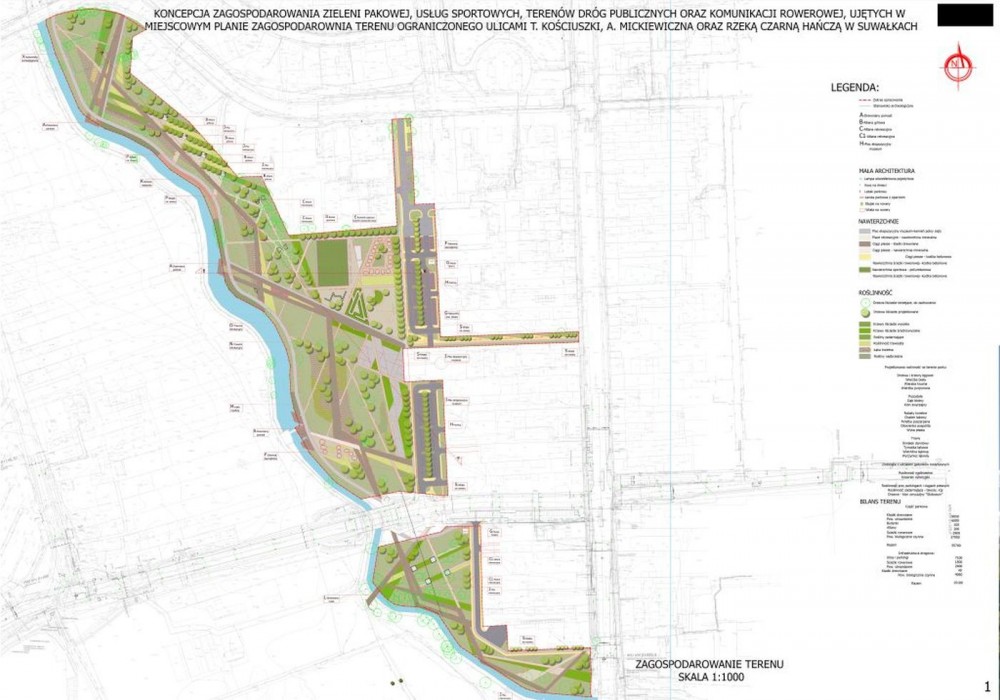
Nadrzeczne bulwary rozciÄ…gajÄ… siÄ™ na wschodnim brzegu Czarnej HaÅ„czy. RozpoczynajÄ… siÄ™ za mostem przy ulicy BakaÅ‚arzewskiej i biegnÄ… wzdÅ‚uż rzeki, aż do ulicy KoÅ›ciuszki. Obecnie teren ten nie jest w żaden sposób wykorzystany.
UrzÄ…d Miejski postanowiÅ‚ zwrócić miasto w stronÄ™ rzeki. Kilka tygodni temu ogÅ‚oszono konkurs na przygotowanie projektu zagospodarowania tego terenu. PoczÄ…tkowo zgÅ‚osiÅ‚o siÄ™ pięć firm, ale ostatecznie tylko dwie z nich przedstawiÅ‚y swoje projekty. Ratusz nie chce zdradzać skÄ…d sÄ… i jak siÄ™ nazywajÄ…, ale pewne jest, że obie otrzymajÄ… nagrody za przygotowanie wizji nadrzecznych terenów.
Projekty różniÄ… siÄ™ od siebie, ale majÄ… też elementy wspólne. Na terenach wzdÅ‚uż Czarnej HaÅ„czy pojawić siÄ™ ma chodnik, Å›cieżka rowerowa i tereny rekreacyjne. Przewidziano możliwość piknikowania i spotkaÅ„ rodzinnych. BÄ™dÄ… tam wiaty grillowe i altany oraz stoliki do gier szachy z możliwoÅ›ciÄ… podłączenia komputera. Ulokowano tam też plac zabaw dla maÅ‚ych dzieci, boiska do gry w koszykówkÄ™, siatkówkÄ™ i tenis oraz siÅ‚ownie pod chmurkÄ….
Na terenie projektowanego parku odtworzona zostanie również roÅ›linność charakterystycznÄ… dla podmokÅ‚ych terenów zalewowych. PojawiÄ… siÄ™ tam też drzewa i krzewy owocowe. Projektanci rozmieÅ›cili również platformy do karmienia dzikiego ptactwa.
- Zapraszamy do zapoznania siÄ™ projektami. Do koÅ„ca miesiÄ…ca czekamy na sugestie mieszkaÅ„ców. Można je przekazywać drogÄ… mailowÄ…. Wszystkie zostanÄ… uwzglÄ™dnione przez sÄ…d konkursowy, który w czerwcu wybierze najlepszy projekt – zapowiada CzesÅ‚aw Renkiewicz, prezydent SuwaÅ‚k.
Po ogÅ‚oszeniu wyniku konkursu i podpisaniu umowy projektant bÄ™dzie miaÅ‚ cztery miesiÄ…ce na przygotowanie szczegóÅ‚owej dokumentacji. W grudniu urzÄ™dnicy starać siÄ™ bÄ™dÄ… o pozwolenie na budowÄ™, tak aby bulwary zaczÄ™to budować już w 2016 roku.
WedÅ‚ug szacunków projektantów koszt budowy wahać siÄ™ może od 10 do 12 milionów zÅ‚otych. Ratusz liczy, że wydatki te uda siÄ™ pokryć z zewnÄ™trznego dofinansowania.
(mkapu)
[18.02.2015] Bulwary zamiast ulicy. Projekt wybiorÄ… suwalczanie
[18.08.2014] Nad rzeką zamiast ulicy, będzie park i boisko










