Zarząd Budynków Mieszkalnych czeka na zgłoszenia osób, które chcą zamieszkać w nowym bloku przy ulicy Pułaskiego. We wrześniu komisja wyłoni tych, którzy spełniają kryteria i będą mogli podpisać umowę najmu. Budowa rozpocznie się w czwartym kwartale, a już jesienią 2017 roku mają się tam wprowadzić pierwsi mieszkańcy.
- Czekamy na wnioski od osób, które chcÄ… zamieszkać w wielorodzinnym budynku mieszkalnym, który wkrótce zbudujemy przy ulicy PuÅ‚askiego. ZgÅ‚aszać siÄ™ można do 16 wrzeÅ›nia - mówi JarosÅ‚aw Lebiediew, prezes ZarzÄ…du Budynków Mieszkalnych.
Nie będzie to typowy budynek komunalny. ZBM zaciągnie kredyt na jego budowę, ale to najemcy spłacą go w ramach stopniowego dochodzenia do własności. W zależności od zawartej umowy kredytowej, przewidywany okres spłaty wyniesie do 20 lat. Gdy najemca zapłaci ostatnią ratę, zostanie na niego przeniesione prawo własności mieszkania. Odbędzie to się jednak nie wcześniej niż 3 lata po podpisaniu umowy najmu.
- We wstÄ™pnych ankietach chęć nabycia mieszkania na zasadzie „Od najemcy do wÅ‚aÅ›ciciela” wyraziÅ‚o 200 osób. Teraz zainteresowani muszÄ… zÅ‚ożyć wniosek i niezbÄ™dne dokumenty. DostÄ™pne sÄ… one w naszej siedzibie i stronie internetowej spóÅ‚ki. Tam znaleźć można też wszystkie szczegóÅ‚y - precyzuje prezes Lebiediew.
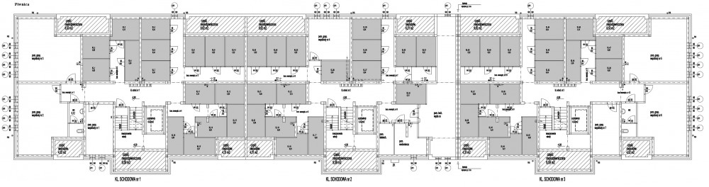
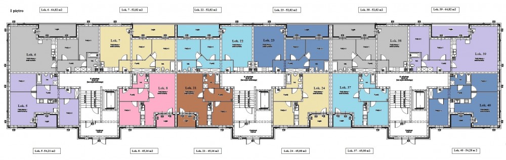
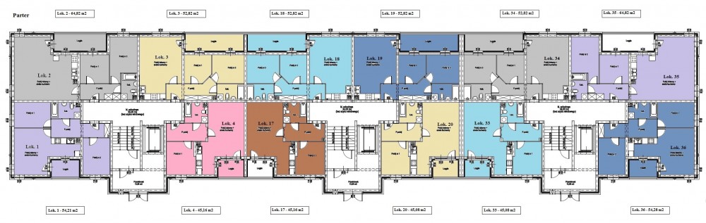
W trzypiÄ™trowym budynku pomiÄ™dzy PuÅ‚askiego 24 E i 24 F znajdować siÄ™ bÄ™dzie 48 mieszkaÅ„. I tak: 16 dwupokojowych lokali bÄ™dzie miaÅ‚o powierzchniÄ™ okoÅ‚o 45 metrów. PozostaÅ‚e to trzypokojowe mieszkania: 24 lokale 53 metrowe i 8 lokali 64 metrowych. Przyjmuje siÄ™, że wartość metra powierzchni użytkowej to okoÅ‚o 3 tysiÄ™cy zÅ‚otych.
- O tym, kto zamieszka w nowym bloku zadecyduje komisja kwalifikacyjna. Zrobi to do koÅ„ca wrzeÅ›nia. Jeżeli chÄ™tnych bÄ™dzie wiÄ™cej niż lokali, decydować bÄ™dzie ilość osiÄ…gniÄ™tych punktów - wyjaÅ›nia szef spóÅ‚ki ZBM.
Pod uwagÄ™ brany bÄ™dzie dochód na czÅ‚onka rodziny, brak mieszkania w SuwaÅ‚kach oraz wiek. Potencjalny nabywca nie bÄ™dzie mógÅ‚ zalegać z pÅ‚atnoÅ›ciami za czynsz. Nie mogÅ‚o być na niego skarg. Nie powinien też wczeÅ›niej korzystać z dodatku mieszkaniowego, a jego dochód powinien wystarczyć nie tylko na ratÄ™ oraz czynsz, ale i na życie.
- Oferta adresowana jest do tych, których nie stać na ofertÄ™ kredytu z banku, ale ich dochód nie pozwala na ubieganie siÄ™ o mieszkanie w zasobach komunalnych - podkreÅ›la Lebiediew.
Już w październiku przed podpisaniem umowy przedwstępnej sprzedaży lokalu nabywca zobowiązany będzie do wpłaty zadatku wynoszącego m.in. 15 proc. przewidywanej wartości nieruchomości. Klucze do niego powinien otrzymać już jesienią 2017 roku.
(mkapu)
[21.05.2016] Od najemcy do właściciela. Oto nowy blok ZBM [wizualizacja]










