Jest szansa, że w 2022 roku w Sejnach rozpocznie się wreszcie budowa mieszkań socjalnych i komunalnych. Najpierw trzeba zmienić plan zagospodarowania przestrzennego. Konsultacje już w najbliższy wtorek, 9 listopada.
Mieszkania socjalne
Na poczÄ…tku października br. podczas sesji Rady Miasta Sejny radni jednogÅ‚oÅ›nie przyjÄ™li uchwałę w sprawie wyrażenia zgody na utworzenie spóÅ‚ki EcoDom.
Podstawowym celem gospodarczym spóÅ‚ki bÄ™dzie budowanie domów mieszkalnych oraz ich eksploatacja. BÄ™dzie to wspólne przedsiÄ™wziÄ™cie z KrajowÄ… AgencjÄ… Poszanowania Energii S.A. (KAPE), która ma sÅ‚użyć pomocÄ… w budowie mieszkaÅ„ socjalnych. BÄ™dÄ… to mieszkania pasywne energetycznie.
Na początek zostanie zbudowanych budynek działce u zbiegu ulic Zawadzkiego i Grodzieńskiej ( niedaleko tzw. łąk biskupich) z kilkunastoma lokalami socjalnymi.
PowoÅ‚anie SpóÅ‚ki umożliwia miastu zÅ‚ożenie wniosku o dofinansowanie inwestycji mieszkaniowej z Funduszu DopÅ‚at Banku Gospodarstwa Krajowego. Zgodnie z obowiÄ…zujÄ…cymi od niedawna przepisami możliwe jest pozyskanie na realizacjÄ™ tej inwestycji do 80 proc. kosztów przedsiÄ™wziÄ™cia.
Mieszkania komunalne
Z kolei z maju br. radni Sejn podjÄ™li jednogÅ‚oÅ›nie uchwałę intencyjnÄ… w sprawie zgody na utworzenie spóÅ‚ki SpoÅ‚eczna Inicjatywa Mieszkaniowa „KZN Podlaskie”, której celem jest budowa domów mieszkalnych oraz ich eksploatacja. SpóÅ‚kÄ™ zakÅ‚ada kilkanaÅ›cie samorzÄ…dów woj. podlaskiego. W caÅ‚ym województwie ma powstać blisko 800 mieszkaÅ„ (o Å›redniej wielkoÅ›ci 50 m2) na wynajem, z niskim czynszem i możliwoÅ›ciÄ… wykupu na korzystnych warunkach. W Sejnach ma być zbudowanych w tym systemie 40 mieszkaÅ„. Siedziba spóÅ‚ki bÄ™dzie mieÅ›cić siÄ™ w BiaÅ‚ymstoku. SpóÅ‚ka miaÅ‚a zostać zarejestrowana na przeÅ‚omie czerwca/ lipca br., ale spawa przyciÄ…gnęła siÄ™.
Trzeba zmienić plan zagospodarowania
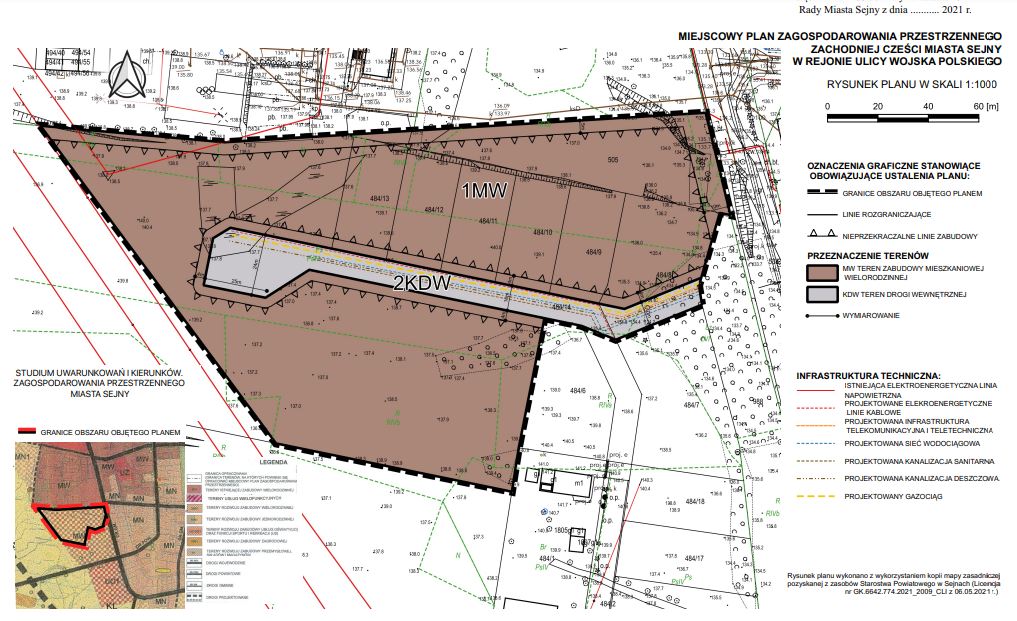
Aby zrealizować te zamierzenia w Sejnach, trzeba zmienić plan zagospodarowania w zachodniej części miasta, w okolicach ulicy Zawadzkiego. Projekt zmian został już wyłożony do publicznego wglądu w Urzędzie Miejskim Można. z nim zapoznawać się i wnosić uwagi do 01 grudnia br. w godzinach pracy Urzędu.
Natomiast publiczna dyskusja nad zmianami odbędzie się we wtorek, 09.11.br. o godz. 10.00 w Ośrodku Kultury w Sejnach ( sala kinowa).
Projekt zmian przewiduje możliwość budowy na terenie na zachód od ul. Wojska Polskiego i póÅ‚noc od ul. Zawadzkiego, na ok. 2,48-ha terenu, budynków wielorodzinnych, z możliwoÅ›ciÄ… umieszczenia w budynkach mieszkaniowych lokali handlowych lub usÅ‚ugowych do 400 m kw., a także budowÄ™ drogi wewnÄ™trznej. Obecnie sÄ… tu pastwiska, i nieużytki.
Po konsultacjach, projekt zmian trafi pod obrady Rady Miejskiej.

WYG
Na fot: Zbudowane już mieszkania w systemie KZN w Gdyni. Fot KZN
2. Rysunek terenu ze zmianami planu zagospodarowania w Sejnach. UM Sejny










