Siłownia pod chmurką i strumyk dla starszych. Parkour, plac zabaw i miejsce do wspinaczki dla młodszych. Tak wyglądać będzie nowy miejski park, który oddany do użytku zostanie jesienią.
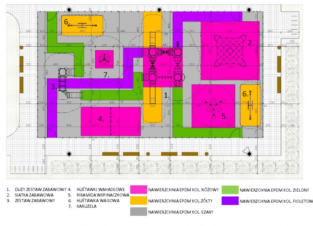
Budowa wielofunkcyjnego placu miejskiego leżącego między Aquaparkiem na hotelem Loft 1898 rozpoczęła się w ubiegłym roku. Dotychczas powstały tam takie atrakcje jak strefa dla dzieci, plac zabaw i nieduże linarium do wspinaczki.
W marcu zlecono rozbudowÄ™ drugiej części tego terenu rekreacyjnego. Za 2 miliony zÅ‚otych zbuduje go z suwalska firmÄ… ZakÅ‚ad Ogólnobudowlany i Drogowy. Do koÅ„ca października powstanie tam strefa dla seniora skÅ‚adajÄ…ca siÄ™ z siÅ‚owni pod chmurkÄ… i miejsce aktywnego wypoczynku dla mÅ‚odzieży.
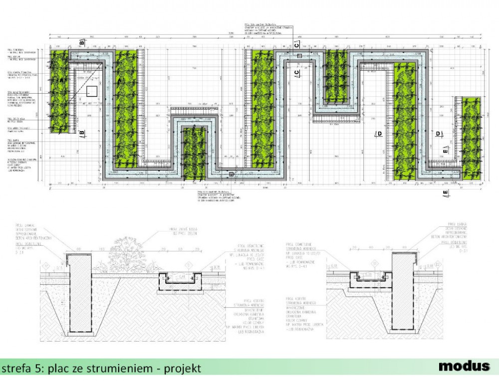
- W centralnej części placu będzie znajdował się strumyk. W strefie dla młodzieży znajdować się będą urządzenia do wspinaczki - opowiada Kamil Sznel, asystent prezydenta Suwałk.
Nowy miejski park zgÅ‚oszono też do konkursu „Mieszkam tu! – MÄ…dre pomysÅ‚y na mÄ…dre miasto” organizowanego przez Portal SamorzÄ…dowy.pl.
- OtrzymaliÅ›my nominacjÄ™ do pierwszej dwudziestki i mamy szansÄ™ na wygranie ciekawej kampanii promocyjnej – chwali siÄ™ suwalski Ratusz.
GÅ‚osować można poprzez stronÄ™ portalu. Rywalizacja samorzÄ…dów zakoÅ„czy siÄ™ w najbliższy poniedziaÅ‚ek.
(mkapu)










