Radni miasta Sejny podczas wtorkowej sesji, 28 grudnia zmienili plan zagospodarowania przestrzennego w zachodniej części miasta, w okolicach ulicy Zawadzkiego. Za głosowało 12 radnych, jeden wstrzymał się od głosu.
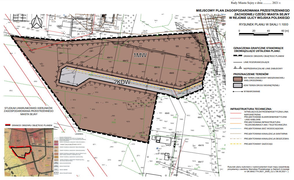
Zmiany przewidujÄ… możliwość budowy na terenie na zachód od ul. Wojska Polskiego i póÅ‚noc od ul. Zawadzkiego, na ok. 2,48-ha terenu, budynków wielorodzinnych, z możliwoÅ›ciÄ… umieszczenia w budynkach mieszkaniowych lokali handlowych lub usÅ‚ugowych do 400 m kw., a także budowÄ™ drogi wewnÄ™trznej. Obecnie sÄ… tu pastwiska, i nieużytki. BÄ™dÄ… wielorodzinne budynki mieszkalne, w tym komunalne. Miasto liczy też na inwestorów prywatnych. To wÅ‚aÅ›nie na wniosek inwestora dokonano zmian planu.
Bez jaskrawych kolorów
UchwaÅ‚a okreÅ›la, że w budynkach mieszkalnych lokalizowanych na tym obszarze należy stosować tradycyjne i regionalne formy architektoniczne, w tym dachy dwuspadowe. Zakazuje siÄ™ krycia dachów materiaÅ‚ami w kolorach niebieskim, zielonym, fioletowym oraz w odcieniach tych kolorów.
Należy stosować pokrycia dachów obiektów budowlanych w odcieniach brÄ…zu, szaroÅ›ci, grafitu, zieleni lub cegÅ‚y, jednakowe w pod wzglÄ™dem użytego materiaÅ‚u i koloru na wszystkich budynkach w granicach dziaÅ‚ki budowlanej.
Do wystroju zewnÄ™trznego należy stosować materiaÅ‚y takie, jak: drewno, kamieÅ„, wyroby ceramiczne oraz tynki i okÅ‚adziny o stosownej kolorystyce, z wykorzystaniem wspóÅ‚czesnych materiaÅ‚ów bez ograniczeÅ„ w tym zakresie.
Będą też dochody dla miasta
W przyszÅ‚oÅ›ci przyniesie to także dochody do budżetu miasta. ”ZakÅ‚adane dochody pochodzić bÄ™dÄ… w znacznej mierze ze sprzedaży mieszkaÅ„ i powiÄ…zanych z tym podatkiem od czynnoÅ›ci cywilnoprawnych oraz z przychodu podatku od wybudowanych budynków, które po zmianie obowiÄ…zujÄ…cego planu bÄ™dÄ… miaÅ‚y lepsze parametry i zapewne zostanÄ… zrealizowane po tak dÅ‚ugim czasie braku zainteresowania inwestorów. WpÅ‚ywy do budżetu pochodzić bÄ™dÄ… wiÄ™c z podatków od umów cywilnoprawnych i przyszÅ‚ych podatków od wybudowanych budynków”, gÅ‚osi uzasadnienie do uchwaÅ‚y.
Miasto w trakcie opracowywania planu uzyskaÅ‚o 12 pozytywnych opinii i uzgodnieÅ„, które wpÅ‚ynęły na piÅ›mie. Jak informowaÅ‚ UrzÄ…d Miasta , wziÄ™to też pod uwagÄ™ potrzeby zaspokojenia interesów prywatnych osób i podmiotów.
Kolejne plany
Kolejne plany zagospodarowania już niebawem. Jak informował burmistrz Arkadiusz Nowalski, z inicjatywy właściciela hotelu Skarpa, będzie zmiana w tym rejonie planu. Przedsiębiorca planuje dobudować użytkowe poddasze.
Radni ( 8 za i 4 wstrzymujÄ…cych siÄ™) podjÄ™li ponadto uchwałę intencyjnÄ… w sprawie przystÄ…pienia do opracowywania zmiany miejscowego planu zagospodarowania w okolicy OÅ›rodku Kultury. Planowana jest bowiem rozbudowa OÅ›rodka z funduszy zewnÄ™trznych. Po zrealizowaniu inwestycji poszerzy siÄ™ znacznie oferta placówki. Po drugiej stronie ulicy planuje siÄ™ urzÄ…dzenie parkingu dla samochodów, by uczestnicy imprez kulturalnych mieli gdzie zostawić swoje pojazdy.
Szansa na mieszkania
Jest szansa, że w 2022 roku w Sejnach rozpocznie siÄ™ wreszcie budowa mieszkaÅ„ socjalnych i komunalnych. Na poczÄ…tku października br. podczas sesji Rady Miasta Sejny radni jednogÅ‚oÅ›nie przyjÄ™li uchwałę w sprawie wyrażenia zgody na utworzenie spóÅ‚ki EcoDom.
Podstawowym celem gospodarczym spóÅ‚ki bÄ™dzie budowanie domów mieszkalnych oraz ich eksploatacja. BÄ™dzie to wspólne przedsiÄ™wziÄ™cie z KrajowÄ… AgencjÄ… Poszanowania Energii S.A. (KAPE), która ma sÅ‚użyć pomocÄ… w budowie mieszkaÅ„ socjalnych. BÄ™dÄ… to mieszkania pasywne energetycznie.
Na początek zostanie zbudowanych budynek działce u zbiegu ulic Zawadzkiego i Grodzieńskiej (niedaleko tzw. łąk biskupich) co najmniej z kilkunastoma lokalami socjalnymi, a być - jak informował burmistrz podczas sesji - może będzie ich 28.
Z kolei z maju br. radni Sejn podjÄ™li jednogÅ‚oÅ›nie uchwałę intencyjnÄ… w sprawie zgody na utworzenie spóÅ‚ki SpoÅ‚eczna Inicjatywa Mieszkaniowa „KZN Podlaskie”, której celem jest budowa domów mieszkalnych oraz ich eksploatacja. SpóÅ‚kÄ™ zakÅ‚ada kilkanaÅ›cie samorzÄ…dów woj. podlaskiego. W caÅ‚ym województwie ma powstać blisko 800 mieszkaÅ„ (o Å›redniej wielkoÅ›ci 50 m2) na wynajem, z niskim czynszem i możliwoÅ›ciÄ… wykupu na korzystnych warunkach. W Sejnach ma być zbudowanych w tym systemie co najmniej 40 mieszkaÅ„. Burmistrz zapewniaÅ‚ radnych, że wszystko idzie w dobrym kierunku.

WYG








